Kagran Living
Ziel des städtebaulichen Wettbewerbs ist die Entwicklung eines städtebaulichen Konzepts, auf dem aufbauend die MA 21 einen Entwurf für einen neuen Flächenwidmungs- und Bebauungsplan verfassen wird. Dabei sollen die vorhandenen Qualitäten des Standorts dargestellt und der Mehrwert des neuen Quartiers für die Umgebung ausgearbeitet werden.
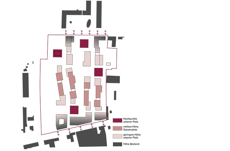
Wir schlagen ein Ordnungs- und Regelprinzip vor, welches auf unterschiedlichen Ebenen zur unverwechselbaren Identität des neuen Stadtquartieres beiträgt: die „Felderstruktur“, welche auf dem, die räumliche Struktur von Kagran prägenden, franziszeischen Kataster basiert.
Diese Grundstruktur gliedert die Freiräume in unterschiedliche Typologien – den „Park“, den „Platz“, den „Anger“ -, schafft klare Erschliessungsräume – die „urbanen Gassen“ und spielt so attraktive Bauplätze in differenzierten Typologien frei – das „Stadthaus“, das „Siedlungshaus“, das „Punkthaus“.
Mit dieser Vielfalt an Aussenräumen und Bebauungen wird ein unverwechselbares Quartier geschaffen, welches ebenso vielfältigen BewohnerInnen und Nutzungen Platz bietet.
Projekt: P-103 nicht offener städtebaulicher Wettbewerb, mit vorgeschaltetem europaweitem offenem Bewerbungsverfahren, 2.Platz
Auslober: Siedlungsunion, Heimat Österreich, Haring Group und Wiener Heim in Kooperation mit MA21
Ort: Wien 22, Am langen Felde 37-57
Grundstück: ca. 71.391 m2
Gesamtnutzfläche BGF: ca. 125.000 m2
Wohnnutzfläche: ca. 115.000m2
Anzahl Wohnungen: 1250
Wettbewerb: 2016/17
Projektpartner: enf Architekten Zürich, Land in Sicht Wien
Typologie: städtebaulicher Entwurf







